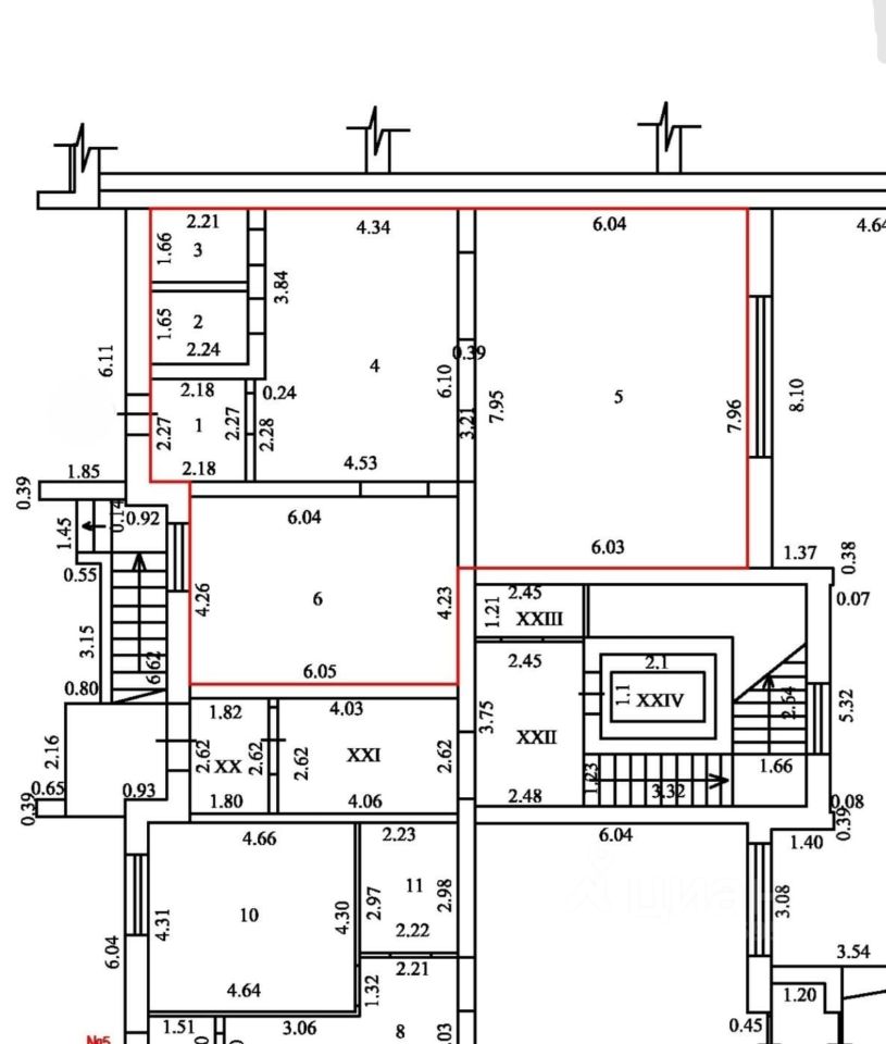
В центре города Тамбова, напротив областной больницы продается коммерческое помещение на первом этаже жилого дома.
— Отдельный вход. Закрытый двор.
— Автономное отопление.
— Несколько мокрых точек (санузел, бытовая комната).
— Черновая отделка от застройщика.
— Полная стоимость в ДКП, с НДС.
В пешей доступности от дома вся необходимая инфраструктура - главные улицы города, частные и общественные медицинские учреждения, детские школы и сады, множество торговых центров, значимые для Тамбова памятники и достопримечательности, река Цна и др.
Любая форма оплаты.
Документы — готовы. Быстрый выход на сделку.
Показ в любое удобное для Вас время.
Договор эксклюзива.
Звоните, ответим на все вопросы.










