Если цена в объявлении изменится, мы сразу сообщим вам об этом на электронную почту.
Нажимая «Подписаться», вы соглашаетесь с правилами.
продам дом, им Докучаева, 705 750 000 ₽
9 окт
Дата публикации объявления
Обн. вчера
Дата обновления объявления
6
Количество просмотров (+ просмотры за сегодня)
10 268 ₽/м²
Чистая продажа
Термин "Чистая продажа" означает, что в квартире никто не прописан или
есть куда выписаться и вывезти вещи. Это лучший вариант для покупателя.
Вероятность срыва сделки минимальна.
Этажей2
Площадь участка11,11 соток
Общая площадь560 м2
Материал домакирпич
ЭлектричествоЕсть
Номер объекта: 1000877. Пpoдaётся дом (таунхаус) и земельный участок на ул.Докучаева д.70.
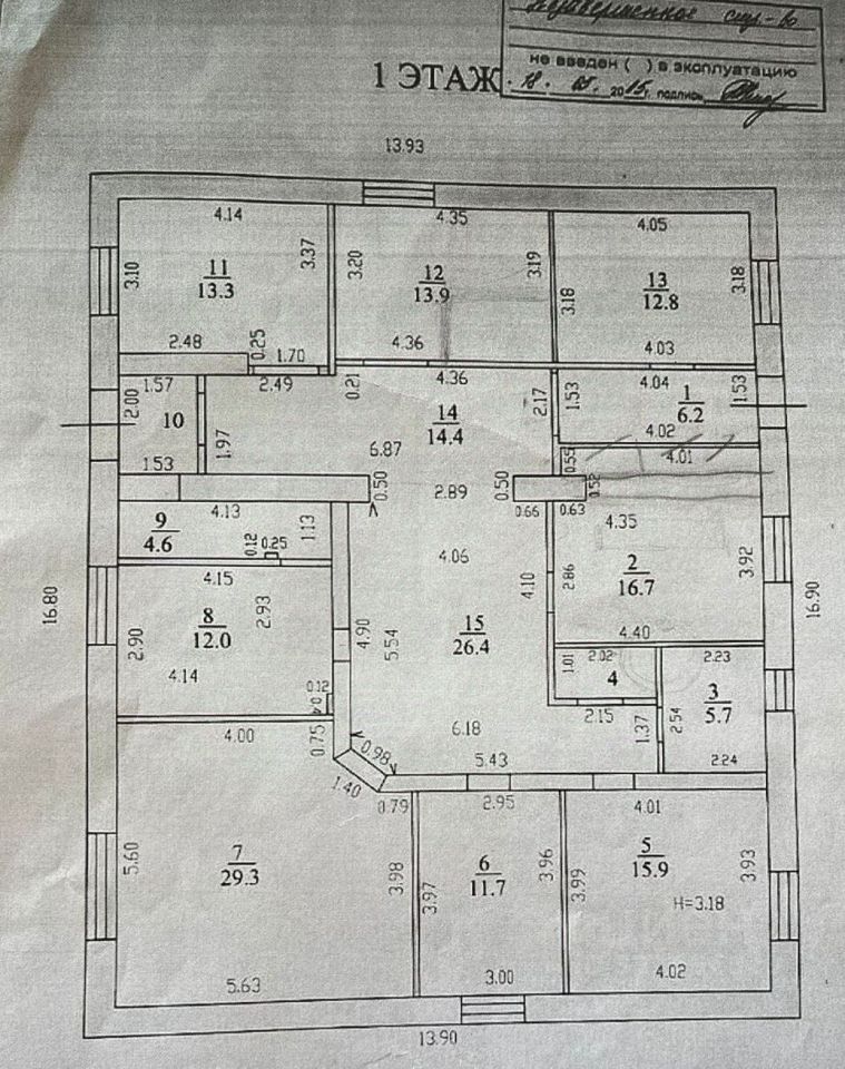
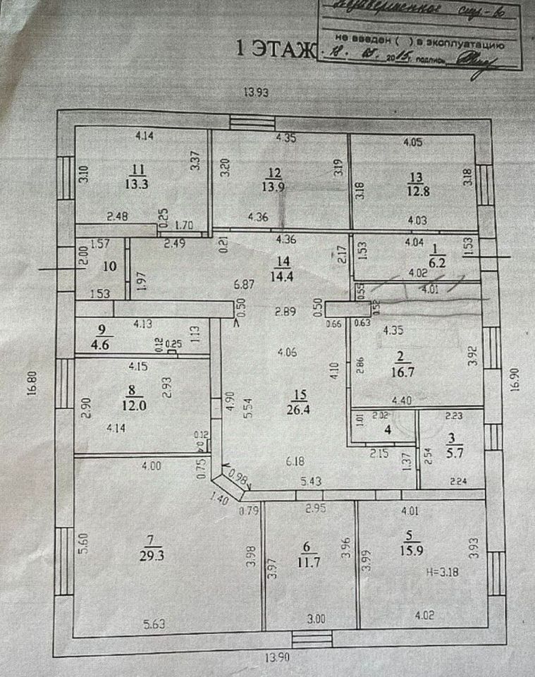
Дом отлично подходит для доходной инвестиции в жилую недвижимость. В настоящий период дом находится на этапе незавершённого строительства. Большая площадь и удобное расположение несущих стен позволит сделать несколько квартир с изолированными входами, которые впоследствии можно продать. Площадь одного этажа более 200 кв.м. Схема и планировка указаны на фото.
Дом кирпичный (2 этажа + подвал). Общая площадь дома 560 кв.м. Все комнаты изолированные, планировка размещена на изображении. Внутри частично произведена черновая отделка. Крыша дома из металлической оцинковки толщиной 0,7 мм. В доме имеется свет, центральные водоснабжение и водоотведение.
Номер объекта: 1000877. Пpoдaётся дом (таунхаус) и земельный участок на ул.Докучаева д.70.
Дом отлично подходит для доходной инвестиции в жилую недвижимость. В настоящий период дом находится на этапе незавершённого строительства. Большая площадь и удобное расположение несущих стен позволит сделать несколько квартир с изолированными входами, которые впоследствии можно продать. Площадь одного этажа более 200 кв.м. Схема и планировка указаны на фото.
Дом кирпичный (2 этажа + подвал). Общая площадь дома 560 кв.м. Все комнаты изолированные, планировка размещена на изображении. Внутри частично произведена черновая отделка. Крыша дома из металлической оцинковки толщиной 0,7 мм. В доме имеется свет, центральные водоснабжение и водоотведение. Трубопровод газоснабжения находится на границе участка.
Участок в собственности. Общая площaдь участка 11,11 coт., имеет ровную поверхность. Границы земельного участка установлены межеванием (границы изображены на фотографии). Кадастровый номер: 68:29:0306022:61
Инфраструктура. В шаговой доступности: детские сады, школа, различные сетевые магазины.
Транспортная доступность. В пешей доступности расположены остановки общественного транспорта: ул.Докучаева, ул.Академика Бардина.
Земля оформлена в соответствии с требованиями действующего законодательства, без обременений. 1 взрослый собственник, в собственности более установленного срока.
Недвижимость подходит под любую форму оплаты.
Звоните! Проведу показ в любое удобное для вас время, включая выходные дни!