Если цена в объявлении изменится, мы сразу сообщим вам об этом на электронную почту.
Нажимая «Подписаться», вы соглашаетесь с правилами.
продам 3-к, Жуковского, 1б3 800 000 ₽
8 сен
Дата публикации объявления
Обн. 22 ноя
Дата обновления объявления
1
Количество просмотров (+ просмотры за сегодня)
73 930 ₽/м²
Чистая продажа
Термин "Чистая продажа" означает, что в квартире никто не прописан или
есть куда выписаться и вывезти вещи. Это лучший вариант для покупателя.
Вероятность срыва сделки минимальна.
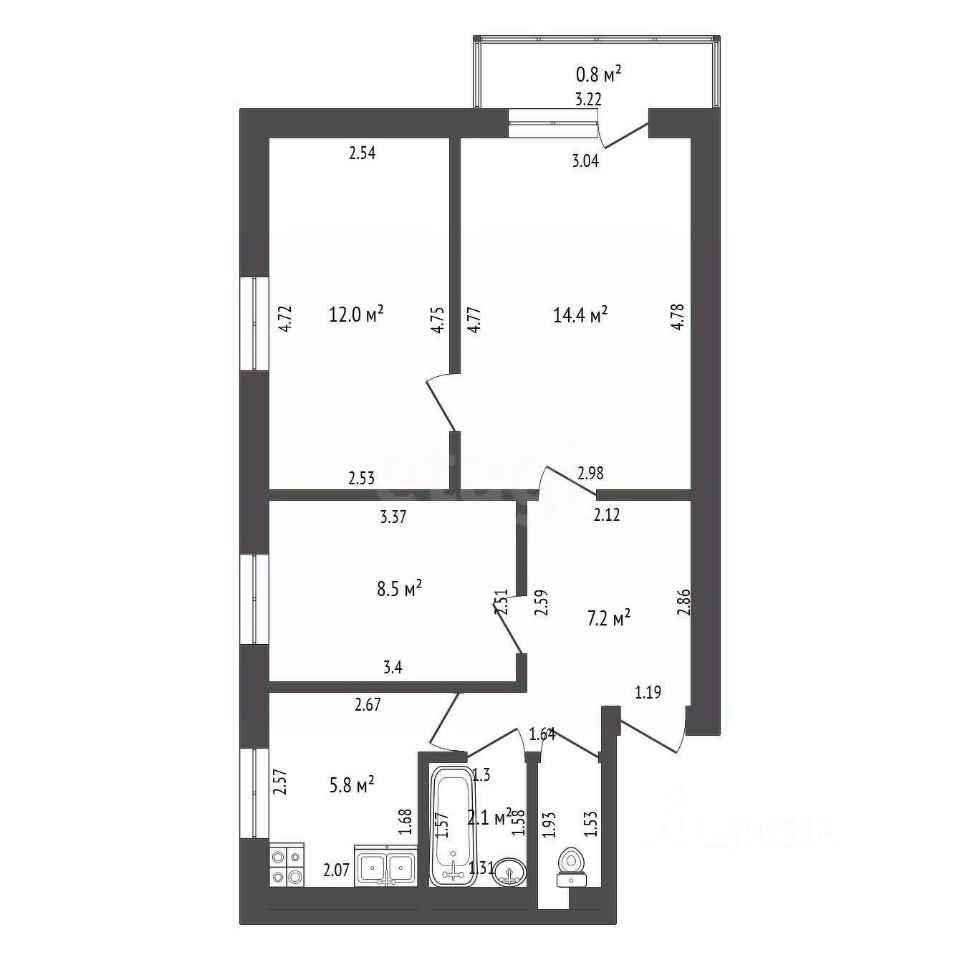
Уютная трехкомнатная квартира на 4 этаже 5-этажного кирпичного дома!
Идеальный вариант для тех, кто ищет бюджетный вариант с большим потенциалом! Общая площадь квартиры 51,4 м². Просторная светлая комната (14.4 кв.м) с выходом на балкон. Две спальни - 12кв.м. и 8.5 кв.м, что идеально для семьи с детьми. Всем найдется отдельное спальное и рабочее место. Из окон открывается живописный вид на тихий двор. Раздельный санузел добавляет удобства, особенно по утрам. Установлена надежная металлическая дверь. Квартира с косметическим ремонтом, содержится в чистоте и готова к проживанию! Главное преимущество - вся мебель и техника, включая кондиционер, остаются новым владельцам. Дополнительным бонусом является наличие подвала.
Уютная трехкомнатная квартира на 4 этаже 5-этажного кирпичного дома!
Идеальный вариант для тех, кто ищет бюджетный вариант с большим потенциалом! Общая площадь квартиры 51,4 м². Просторная светлая комната (14.4 кв.м) с выходом на балкон. Две спальни - 12кв.м. и 8.5 кв.м, что идеально для семьи с детьми. Всем найдется отдельное спальное и рабочее место. Из окон открывается живописный вид на тихий двор. Раздельный санузел добавляет удобства, особенно по утрам. Установлена надежная металлическая дверь. Квартира с косметическим ремонтом, содержится в чистоте и готова к проживанию! Главное преимущество - вся мебель и техника, включая кондиционер, остаются новым владельцам. Дополнительным бонусом является наличие подвала.
Чистый и ухоженный подъезд с пластиковыми окнами. Благоустроенная придомовая территория с уютными лавочками создает атмосферу для приятного отдыха на свежем воздухе.
В шаговой доступности находятся детские сады, школы 17, 24, Педагогический колледж, а также магазины различной торговой направленности, кафе, пекарни, почта, автовокзал, медицинские учреждения, салоны красоты и аптеки. Остановки общественного транспорта находятся рядом, что делает передвижение по городу простым и удобным. Парковка не станет проблемой всегда найдется место для вашего автомобиля.
Звоните и записывайтесь на просмотр ваш новый дом уже ждет вас! Сделку сопровождает специалист агентства недвижимости Этажи Ефимова Светлана.