Дом, Молодежная, 21 Показать на карте
с. Александровка (Знаменский район)
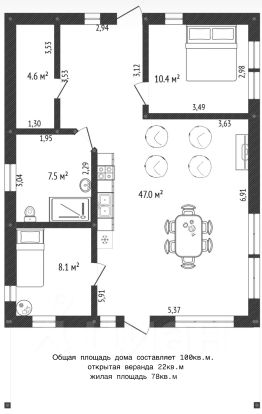
Хорошее предложение!К продаже представлен дом на просторном живописном участке площадью 38 сот. с прекраснейшим видом на закат на панораме безграничного неба, ЛПХ, в селе Александровка, Знаменского района, Тамбовской области, в 50-ти км от Тамбова (дорога занимает 1ч). Инфраструктура в шаговой доступности:- главная асфальтированная дорога, дорога асфальт полностью до Знаменки,- музей, - действующий православный храм,- медицинский пункт, - школа, - дет. сад,- несколько продуктовых магазинов,- городской транспорт (маршрутка) по расписанию. Характеристики дома:- кирпичный дом, хорошая планировка, в доме все коммуникации: газовое отопление, центральное водоснабжение, вывод воды на улицу, септик. - общая площадь: 108,5 м²- этажность: 1 этаж- комнаты: 3 спальни, 1 гостиная, 1 просторный санузел,- два погреба: один дома (теплый), другой в сарае (холодный).!!!!! Из важных преимуществ: - в 2013 осуществлена замена всех окон на деревянные, - в 2016 году заменены и полностью переделаны: вся отопительная система в доме (в т.ч. батареи), вся крыша дома, сделаны теплые полы в Спальне 1 и гостиной (см. план дома), - установлен нагревательный бак воды, - капитальный ремонт в ванной в 2014 г.,- капитальный ремонт веранды в 2023 г. (см. план дома),- заменены главные входные двери,- замена крыльца у главного входа 2025г. Почти вся мебель и техника остаются. Земельный участок сухой, большой, имеются плодово-ягодные деревья (кустарники): яблони, груша, вишня, слива, абрикос, крыжовник, смородина и т.д. Имеются гараж, сарай и погреб. С задней стороны участка примыкает огромное поле до горизонта, открывая красивую панораму на прекрасную природу этого места. Один собственник. В наличии полный пакет документов на дом и участок. Поставлены на кадастровый учет. Соседи с одной стороны участка дружелюбные, проживают постоянно, с другой стороны участка собственник появляется редко, проживает в Тамбове. Оперативный показ, быстрый выход на сделку, покупка возможна в ипотеку, за счёт средств материнского капитала, жилищные сертификаты и др. Собственник! Позвоните, задайте вопрос!Показ в любое время, в т.ч. в субботу и в воскресенье по предварительной договоренности.
108 м2
1 этаж
Кирпич
- Показать контакты
- Добавить в избранное
108 м2
1 этаж
Кирпич
2 470 000
22 870 /м2
